Umnutzung Büro zu Tierarztpraxis

Umnutzung Bürofläche zu einer felmo Tierarztpraxis

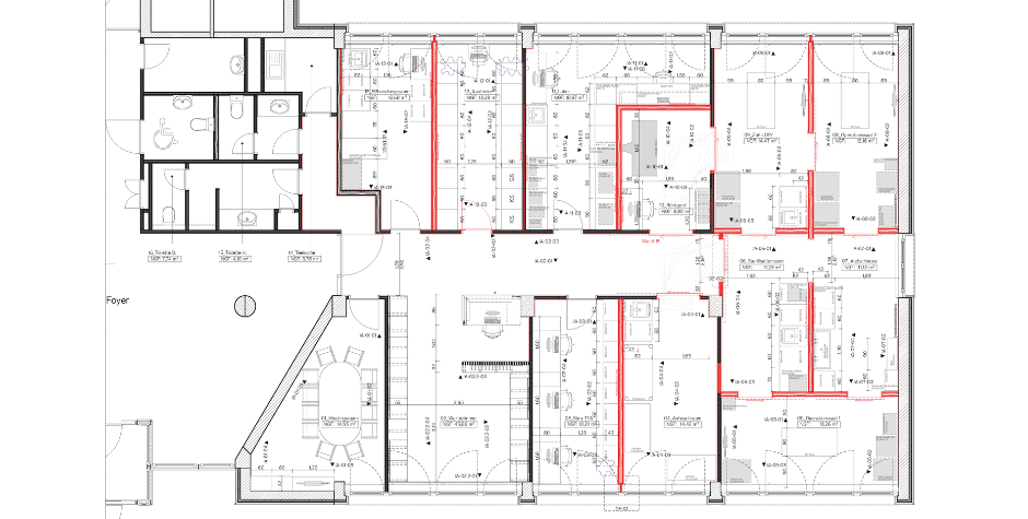
Eine leerstehende Bürofläche wird umgenutzt

Aus einer nüchternen Bürofläche wurde ein Ort der Ruhe und Verlässlichkeit: C. M. Laute Architektur übernahm als Generalplaner die komplette Planung aus einer Hand für die Nutzungsänderung und den Ausbau der Tierarztpraxis von Felmo in Berlin Neukölln. Die Verbindung aus klarer Funktionalität, freundlicher Atmosphäre und präziser Ausführung schafft einen Betrieb, der Patiententiere beruhigt, Teams entlastet und Eigentum nachhaltig wertstabil macht.

Worin der Unterschied liegt

  • Planung Tierarztpraxis mit Weitblick:
    Klare Wege, getrennte Wartezonen, hygienegerechte Materialien und intuitive Orientierung sorgen für reibungslose Abläufe und steigern die Zufriedenheit aller Beteiligten.
  • Umnutzung Bürofläche ohne Reibungsverluste:
    wir transformierten den Bestand mit minimalinvasiven Eingriffen, nutzten vorhandene Ressourcen intelligent und senkten so Bauzeit, Kosten und Risiken.
  • Generalplanerleistung mit zentraler Verantwortung:
    Ein Ansprechpartner, eine Linie, ein Ergebnis. Wir koordinierten TGA, Brandschutz und Schallschutz, sicherten Termine und Qualität und hielten das Budget verlässlich.
  • Budgetoptimierte Planung für ein Startup:
    Wertvolle Ausstattung dort, wo sie wirkt; robuste, wartungsarme Lösungen, wo Beständigkeit zählt. So entsteht Wirtschaftlichkeit – von der Investition bis zum Betrieb.
  • Wiederverwendbares Möblierungskonzept:
    Modular, skalierbar, standortunabhängig. Empfang, Behandlungsräume und Nebenräume folgen einem System, das künftige Standorte schneller und kostensicher reproduzierbar macht.

Sichere Nutzungsänderung nach Berliner Bauordnung

  • Vollständige Antragsunterlagen, abgestimmtes Brandschutzkonzept und Brandschutznachweis – sorgfältig vorbereitet und mit den Behörden in Berlin Neukölln verlässlich geführt.
    Das Ergebnis: Rechtssicherheit und Planungsklarheit.

Leistungsphasen nach HOAI – lückenlos umgesetzt

  • LP 1–2:
    Bedarfsanalyse, Bestandsaufnahme, Machbarkeit und Budgetrahmen für die Nutzungsänderung in Berlin Neukölln.
  • LP 3–4:
    Entwurf und Genehmigungsplanung mit integrierten Fachdisziplinen, klare Kostentransparenz.
  • LP 5–7:
    Ausführungsplanung, Ausschreibung und Vergabe – präzise Details, marktgerechte Angebote, belastbare Vergabeempfehlungen.
  • LP 8–9:
    Objektüberwachung und Objektbetreuung – Termin-, Qualitäts- und Kostenkontrolle, Dokumentation, Optimierung im Betrieb.

Besonderheiten des Projekts

  • Akustischer Komfort und Nachbarschaftsverträglichkeit im urbanen Umfeld.
  • Serielle Details und modulare Möbel reduzieren Ausführungszeiten und sichern eine gleichbleibend hohe Qualität über Standorte hinweg.

Ihr Mehrwert

  • Komplette Planung aus einer Hand mit Generalplanerleistung schafft Ruhe im Prozess und Verlässlichkeit im Ergebnis.
  • Budgetoptimierte Planung für ein Startup schützt den Investitionsrahmen und senkt Betriebskosten langfristig.
  • Rechtssichere Nutzungsänderung minimiert Risiken und stärkt die Wertentwicklung der Immobilie.
  • Ein wiederverwendbares Möblierungssystem beschleunigt Roll-outs und macht Wachstum kalkulierbar.

Projektdaten

LEISTUNGSPHASEN:
1-9 nach HOAI

 

PROJEKTSTART:
2025

 

FERTIGSTELLUNG:
ca. 08-2025

 

NUTZUNG:
Tierarztpraxis

 

FLÄCHE:
ca. 300m2 Nutzfläche

 

ARCHITEKT:
C. M. Laute Architektur

 

BAUHERR:
felmo