Dachgeschossausbau_Uhlandpalais_Berlin

Dachgeschossausbau im Uhlandpalais, Berlin

Projektübersicht

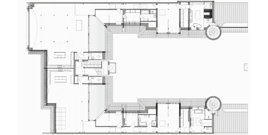
Im Rahmen des Projektes wird das Dachgeschoss des Vorderhauses des historischen Uhlandpalais in Berlin zu zwei großzügigen Luxuswohnungen umgebaut. Die Wohnungen zeichnen sich durch offene Wohnküchen, repräsentative Wohnräume sowie großzügige Masterbadezimmer mit integrierter Sauna aus. Die Baugenehmigung für das Vorhaben wurde bereits erteilt.

 

Grundlegende Bau- und Designmerkmale

1. Raumaufteilung und Gestaltung

  • Jede der beiden Luxuswohnungen wird über eine Wohnfläche von ca. 250 Quadratmetern verfügen.
  • Die offene Wohnküche wird nahtlos in den Wohnbereich integriert, wodurch eine lichtdurchflutete und großzügige Raumwirkung entsteht.
  • Die Wohnräume sind mit hohen Decken (bis zu 4,50 m) ausgestattet, um ein Gefühl von Weite und Eleganz zu vermitteln.
  • Große Fensterfronten lassen viel Tageslicht in die Wohnungen und bieten einen beeindruckenden Blick auf die umliegende Architektur.

2. Materialien

  • Bei der Ausstattung wird großer Wert auf die Auswahl edler und nachhaltiger Materialien gelegt.
  • Für Böden werden hochwertige Parkettböden in Eiche eingesetzt, die sowohl Wärme als auch Stil ausstrahlen.
  • Die Wände erhalten einen feinen Anstrich in neutralen, eleganten Farbtönen, die die ansprechende Architektur des Gebäudes unterstreichen, als optische highlights werden Betonsichtwände in Szene gesetzt.

3. Küchen- und Badezimmereinrichtungen

  • Die offenen Wohnküchen sind mit modernsten Elektrogeräten ausgestattet und bieten großzügige Arbeitsflächen aus hochwertigem Quarzite.
  • In den Masterbadezimmern finden sich freistehende Badewannen sowie luxuriöse Duschbereiche mit maßgefertigten Glasfronten.
  • Eine Sauna wird als Teil des Wellnessbereichs integriert, ausgestattet mit hochwertigen Holzarten, die für ein angenehmes Klima sorgen.
  • Die Sanitäranlagen werden mit eleganten Armaturen und modernen Designs ausgestattet, die den Luxusanspruch der Wohnungen unterstreichen.

4. Technische Ausstattungen und Nachhaltigkeit

  • Das Dachgeschoss wird gemäß den neuesten Standards der Energieeffizienz ausgestattet, um den Energieverbrauch nachhaltig zu minimieren.
  • Eine moderne Heizungs- und Kühltechnologie wird integriert, um ein angenehmes Raumklima zu gewährleisten.
  • Smart Home-Technologien ermöglichen eine individuell anpassbare Steuerung von Licht, Temperatur und Sicherheitssystemen.

5. Außengestaltung

  • Die hofseitigen Terrassen der Wohnungen werden großzügig angelegt und mit hochwertigen Materialien für Beläge und Begrünung ausgestattet.
  • Der Charakter der unter Denkmalschutz stehenden, hochherrschaftlichen Gebäudefassade bleibt erhalten. Alle sichtbaren Merkmale des Dachgeschossausbaus fügen sich harmonisch in die Straßenfassade ein.

Fazit

Der Dachgeschossausbau im Uhlandpalais wird nicht nur durch seine exklusive und durchdachte Planung überzeugen, sondern auch durch die Verwendung hochwertiger Materialien und modernster Technik. Die entstehenden Luxuswohnungen werden sowohl den Ansprüchen an Komfort und Design gerecht als auch einen erstklassigen Lebensraum im Herzen Berlins bieten. Gegenwärtig (Mai 2025) befinden sich die Dachrohlinge im Verkauf, gerne kann der Kontakt zum Verkäufer hergestellt werden.

Projektdaten

LEISTUNGSPHASEN:
1-4 nach HOAI

 

PROJEKTSTART:
aktuell in Planung

 

FERTIGSTELLUNG:
folgt

 

NUTZUNG:
Luxus Wohnungen

 

FLÄCHE:
ca. 500m2 Wohnfläche

 

ARCHITEKT:
C. M. Laute Architektur

 

BAUHERR:
privat